Bouwkundig tekenbureau die voor u klaarstaat.

Snel en voordelig helpen wij de druk te verlichten op bedrijven in de bouwsector.


Digitalisering van archieftekeningen, renders, bouwvergunningsaanvragen, bouwkundige plattegronden, NEN 2580-metingen, verzekeringsmeetstaten en al uw andere bouwkundige diensten!

Laten we samenwerken!

Onze diensten

Digitalisering archieftekenigen

Wij digitaliseren uw archieftekenigen in de BIM software die u wenst. Zodoende zijn ze eenvoudig toegankelijk en veilig bewaard.

Renders

Wij creëren realistische en architectonische renders van uw bouwprojecten. Wij beschikken over de nieuwste software.

Vergunningsaanvraag

Wij begeleiden u bij het aanvragen van bouwvergunningen, zorgen voor correcte documentatie en vereenvoudigen het proces voor een vlotte goedkeuring.

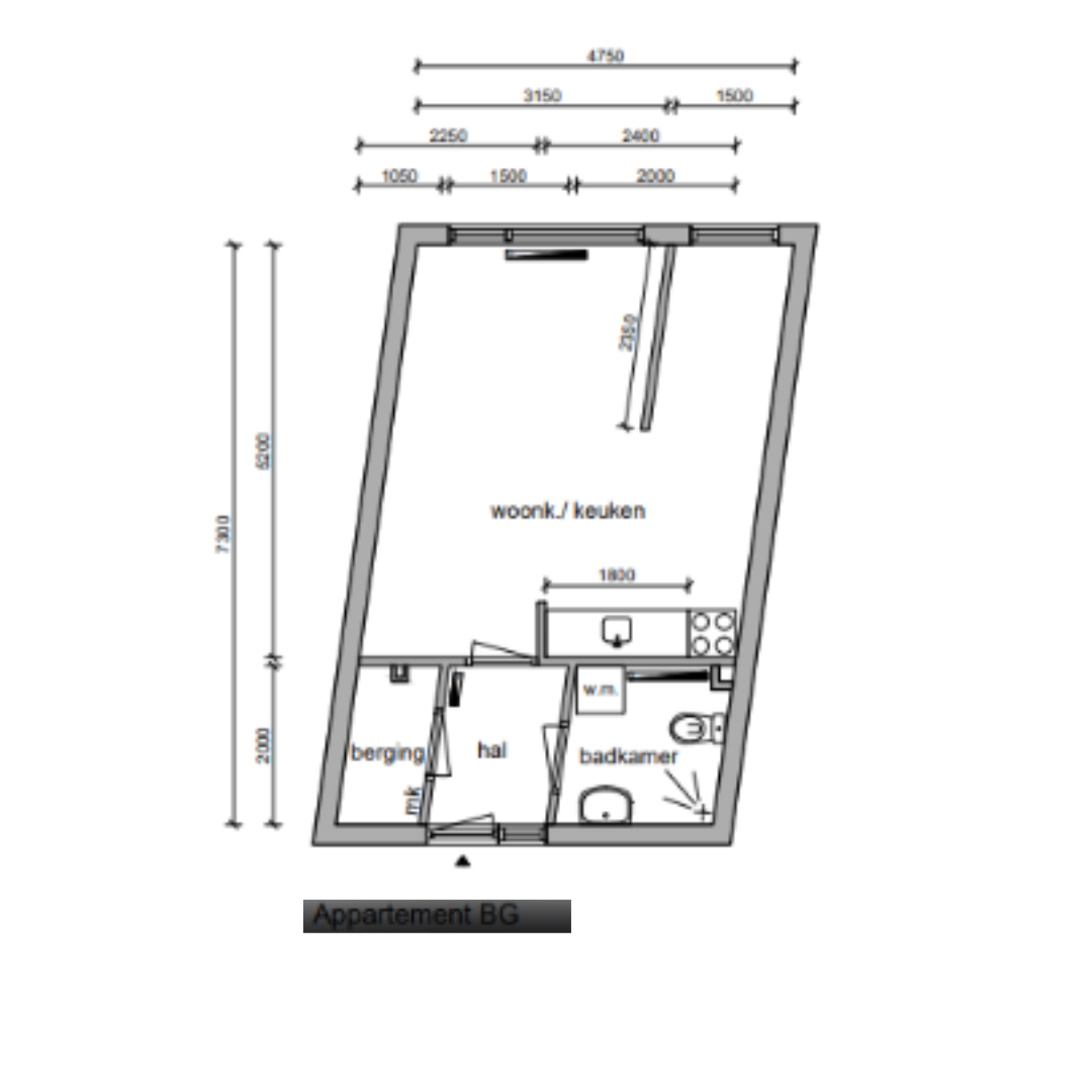
Bouwkundige plattegronden

Wij leveren gedetailleerde bouwkundige plattegronden, essentieel voor elke fase van uw project, van ontwerp tot uitvoering, met precisie en zorg.

NEN 2580-metingen

Wij voeren nauwkeurige NEN 2580-metingen uit. Essentieel voor betrouwbare vastgoedberekeningen.

Verzekeringsmeetstaten

Wij stellen de bouwkundige overzicht op die uw calculator nodig heeft voor de kostbepaling voor renovaties of herstelwerkzaamheden.

Andere service nodig?

Wij hebben ervaring met verschillende soorten projecten en gaan graag met u in gesprek!

Contact

Projecten

Over Ons

Studio Fez is een bouwkundig teken- en adviesbureau opgericht in 2024 door Ismail Orfi en Driss Adhar. Dankzij een snelle start hebben we al diverse projecten succesvol afgerond en een solide klantenbestand opgebouwd.

Wij zijn een jong en dynamisch team dat samenwerkt met studenten van de universiteit. Hierdoor kunnen we u zowel hoogwaardige kwaliteit als aantrekkelijke tarieven bieden. Dit is ideaal als u de druk wilt verlichten van uw drukke architectenbureau, vastgoedontwikkelaars of andere bedrijven in de bouwsector.

Onze diensten omvatten een breed scala aan bouwkundig tekenwerk en inmetingen. Met onze flexibele werktijden zijn we in staat om op korte termijn te leveren.